Omschrijving
Aan de Parklaan, in het exclusieve Villapark op loopafstand van het centrum, lieten Eindhovense industriëlen als Anton Philips en andere fabrikanten begin 1900 imposante villa’s bouwen. Sindsdien is de laan onlosmakelijk verbonden met de rijke geschiedenis van Philips en haar topmedewerkers.
En in deze laan boordevol historie, krijg je de kans om te gaan wonen in deze uitzonderlijk ruime, geheel gerenoveerde half vrijstaande villa met een woonoppervlakte van maar liefst 310 m2. Alle facetten voor jarenlang woongenot van topniveau zijn aanwezig: maar liefst zes slaapkamers, twee badkamers, een grote woonkeuken en een prachtige tuin met meerdere terrassen. Er is royale parkeergelegenheid op de oprit en de achtergelegen garage is te bereiken vanaf de Fuutlaan. In 2015 is de halfvrijstaande villa verbouwd, uitgebouwd en verduurzaamd tot een droomhuis in een van de meest prestigieuze villawijken van Eindhoven.
De ligging is uitstekend, aan de prachtige Parklaan en ten hoogte van de Zandstraat. Winkelcentrum Haagwijk bevindt zich op loopafstand, net als Salto International School RISE. Verder is de villa gunstig gesitueerd ten opzichte van de TU/e, de Karpendonkse Plas en het centrum van Eindhoven. Als u, met de fiets of lopend, de Parklaan volgt dan is het circa 1,5 kilometer tot de Markt, hartje Eindhoven.
BEGANE GROND
Bewonder de voortuin met royale oprit en de imposante, halfvrijstaande villa boordevol luxe en karakter. Aan de voorzijde is de entree, die toegang biedt tot een fraaie vestibule met garderobe. Een stalen, zwarte taatsdeur biedt toegang tot de hal met een bordestrap naar de eerste verdieping, toegang tot de wijn-/provisiekelder en het gastentoilet.
De leefruimte op de begane grond is van groot formaat en verdeeld in een fraaie woonkamer, eetkamer en een tv-kamer. Een moderne roomdivider, hoge plafonds, grote ramen en de keramische tegelvloer met vloerverwarming bepalen de sfeer. De tv-kamer, aan de voorzijde, is ook geschikt als werkkamer en met twee stalen schuifdeuren afgesloten van de tuingerichte woonkamer met gashaard.
Achter de gashaard en roomdivider is de eetkamer, die in naadloze verbinding staat met de woonkeuken. Hier ontmoet het originele deel van de villa de moderne, lichte uitbouw met een royale schuifpui naar het terras en de tuin. Eten kan niet alleen in de eetkamer, maar ook in de woonkeuken is ruimte voor een grote eettafel. De exclusieve keukenopstelling met spoeleiland is voorzien van alle benodigde inbouwapparatuur van topkwaliteit.
In het verlengde van de woonkeuken is de bijkeuken, die toegang biedt tot een tweede toiletruimte en een speelkamer voor de jongste bewoners van de Parklaan 18. Apart van het woongedeelte, maar toch binnen handbereik…
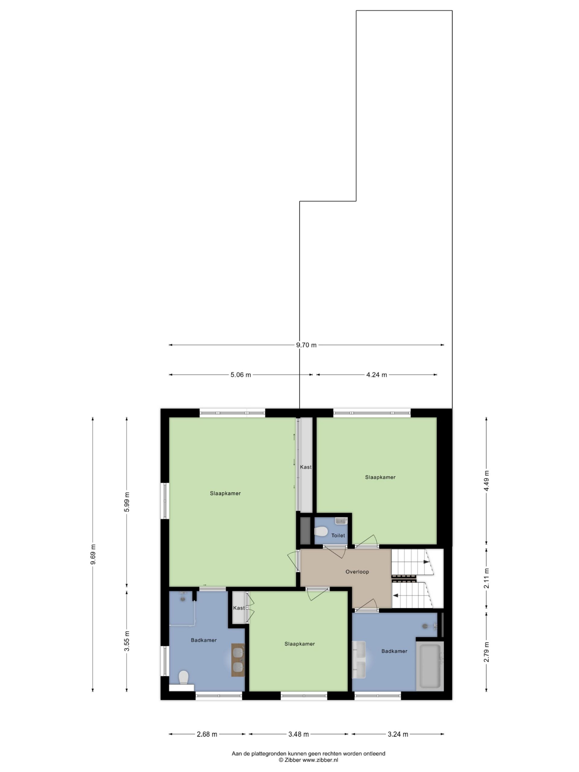
EERSTE VERDIEPING
Exclusiviteit, sfeer en comfort zijn ook aanwezig op de eerste verdieping. In het linkerdeel, met prachtig uitzicht naar de tuin, is de master bedroom met een maatwerk kleedruimte en een eigen badkamer, met alle benodigde comfort. De slaapkamer aan de voorzijde is, net als de slaapkamer aan de achterzijde, in gebruik als riante kinderkamer.
Vanaf de overloop zijn niet alleen de slaapkamers, maar ook een toiletruimte en de tweede badkamer te bereiken. Deze badkamer heeft niet alleen een inloopdouche, maar ook een ligbad en een dubbel wastafelmeubel.
TWEEDE VERDIEPING
Het hart van deze verdieping wordt gevormd door een overloop, met een fijne zitgelegenheid bij het dakraam. Vanaf hier zijn maar liefst drie slaapkamers te bereiken, waarvan twee aan de achterzijde. Een van deze slaapkamers, met schuifdeuren naar de overloop, is ingericht als royale werkkamer.
TUIN EN GARAGE
Deze half vrijstaande villa wordt aan drie kanten omringd door een onder architectuur aangelegde tuin, met royale parkeergelegenheid op de oprit aan de voorzijde. Er zijn meerdere riante terrassen gerealiseerd, waarvan een met elektrische verwarming. Leibomen en hedera zorgen voor privacy en de zonligging is optimaal. Een sproei-installatie zorgt ervoor dat het gazon en de beplanting in een goede conditie blijft.
Wat je aan de voorzijde niet ziet, is de circa 37 m2 grote garage/berging die vanuit de tuin te bereiken is. Dit bijgebouw, met een bergvliering, heeft een elektrisch bedienbare kantelpoort naar de Fuutlaan.
BIJZONDERHEDEN
– Algehele renovatie in 2015, met behoud van karakter en originele elementen;
– Merendeels aluminium kozijnen met draai-/kiepramen en HR++ glas;
– Het merendeel van de plafonds is voorzien van een licht-/geluidsplan met inbouwverlichting en -speakers
(Denon/Heos). Deze laatste worden centraal aangestuurd en zijn in zones te bedienen;
– Verwarming en warm water via een HR-ketel (Remeha Calenta, 2015);
– Vloerverwarming op de begane grond en een deel van de eerste verdieping;
– Vernieuwde elektrische installatie (2015), mechanische ventilatieunit (2024) en diverse extra’s als brandmelders,
CO2- en vochtmeters;
– Zes (slaap)kamers en twee badkamers;
– Royale garage (bereikbaar vanaf de Fuutlaan) en een oprit voor meerdere auto’s;
– Energielabel B.
Kenmerken
Interesse in deze woning?
Move
Alles rondom jouw (ver)koop overzichtelijk op één plek Met Move heb je jouw volledige (ver)koopdossier online bij elkaar.