Omschrijving
*English version below*
Stap binnen in een woning die je direct raakt.
Aan de Beukenlaan 10 in Valkenswaard wacht een vrijstaande villa waar rust, ruimte en luxe moeiteloos samenkomen. Met maar liefst 322 m² woonoppervlakte, een perceel van 1.519 m² en een hoogwaardige modernisering in 2015 (energielabel A+), heb je hier alles wat je zoekt – en meer. Zie jij jezelf hier al wonen? Plan dan snel een bezichtiging en ervaar het zelf.
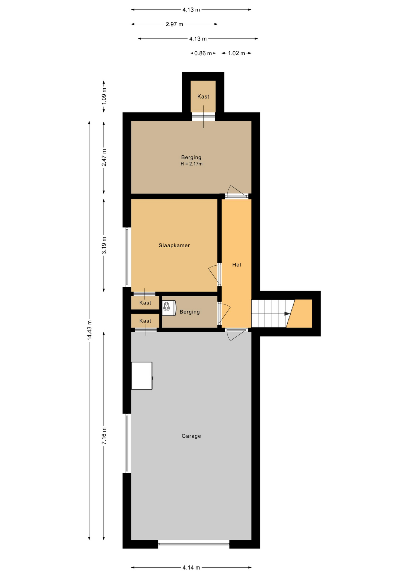
Bij binnenkomst voel je het meteen: dit huis klopt. De hal leidt je naar het royale woongedeelte met een fraai zitgedeelte aan de straatzijde, afgewerkt met een stijlvolle wengé parketvloer. De eigentijdse woonleefkeuken voorzien van vloerverwarming met luxe inrichting, en kookeiland vormt het hart van de woning. Een plek waar koken, leven en samenkomen naadloos in elkaar overlopen. Op de begane grond vind je daarnaast een comfortabele masterbedroom met badkamer en-suite. De royale sportruimte biedt volop mogelijkheden en is eenvoudig terug te brengen naar extra slaapkamers. In het souterrain beschik je over een extra slaapkamer, een grote provisieruimte en een dubbele garage. En als kers op de taart: een overdekt, verwarmd zwembad (ca. 12 x 4 meter) dat direct vanuit de woning te bereiken is – pure luxe, het hele jaar door.
Buiten ervaar je rust en vrijheid. De fraai aangelegde tuin biedt optimale privacy dankzij de royale omvang en is ingericht met een gezellige loungehoek waar je tot in de late uurtjes geniet. De ligging in een villapark op één van de mooiste locaties van Valkenswaard maakt het compleet: rustig, groen en toch verrassend dichtbij het centrum, scholen en voorzieningen. Ook Eindhoven ligt op korte afstand en is eenvoudig bereikbaar, net als het openbaar vervoer. Hier woon je ruim, comfortabel en perfect verbonden.
* Volledig gemoderniseerd in 2015
* Energielabel A+
* Woonoppervlakte ca. 322 m²
* Perceel van ca. 1.519 m²
* Vrijstaande villa op toplocatie
* Overdekt en verwarmd zwembad (ca. 12 x 4 m), inpandig bereikbaar
* Luxe woonleefkeuken met kookeiland
* Vloerverwarming in het woon,- eetgedeelte
* Wengé parketvloer in de zitkamer
* Masterbedroom met badkamer en-suite
* Grote sportruimte (mogelijkheid tot extra slaapkamers)
* Souterrain met extra slaapkamer
* Royale provisieruimte
* Dubbele inpandige garage
* Airconditioning en warmtepomp aanwezig
* Gezellige loungehoek in de tuin
* Optimale privacy
* Ruime parkeermogelijkheden op eigen terrein
Nieuwsgierig? Dit is zo’n woning die je moet beleven. Neem contact op en plan een bezichtiging. Je gaat hier verrast worden.
******
Step inside a home that touches you immediately.
At Beukenlaan 10 in Valkenswaard, a detached villa awaits where tranquility, space, and luxury come together effortlessly. With no less than 322 m² of living space, a plot of 1,519 m², and a high-quality modernization in 2015 (energy label A+), you have everything you are looking for here – and more. Can you picture yourself living here? Then schedule a viewing soon and experience it for yourself.
Upon entering, you feel it immediately: this house is just right. The hall leads you to the spacious living area with a beautiful seating area facing the street, finished with a stylish wenge parquet floor. The contemporary eat-in kitchen, equipped with underfloor heating and luxurious fittings, and a kitchen island, forms the heart of the home. A place where cooking, living, and gathering flow seamlessly into one another. On the ground floor, you will also find a comfortable master bedroom with an en-suite bathroom. The spacious gym offers plenty of possibilities and can easily be converted back into additional bedrooms. In the basement, you have an extra bedroom, a large pantry, and a double garage at your disposal. And as the icing on the cake: a covered, heated swimming pool (approx. 12 x 4 meters) that is accessible directly from the house – pure luxury, all year round.
Outside, you experience peace and freedom. The beautifully landscaped garden offers optimal privacy thanks to its generous size and is furnished with a cozy lounge area where you can enjoy yourself until the late hours. The location in a villa park in one of the most beautiful spots in Valkenswaard makes it complete: quiet, green, and yet surprisingly close to the center, schools, and amenities. Eindhoven is also a short distance away and easily accessible, as is public transport. Here you live spaciously, comfortably, and perfectly connected. * Fully modernized in 2015
* Energy label A+
* Living area approx. 322 m²
* Plot of approx. 1,519 m²
* Detached villa in a prime location
* Covered and heated swimming pool (approx. 12 x 4 m), accessible from inside
* Luxurious eat-in kitchen with kitchen island
* Underfloor heating in the living and dining area
* Wenge parquet flooring in the sitting room
* Master bedroom with en-suite bathroom
* Large gym (possibility for extra bedrooms)
* Basement with extra bedroom
* Spacious pantry
* Double indoor garage
* Air conditioning and heat pump present
* Cozy lounge area in the garden
* Optimal privacy
* Ample parking on private grounds
Curious? This is the kind of home you have to experience. Contact us and schedule a viewing. You are in for a surprise.
Feedback
Google Translate
Kenmerken
Interesse in deze woning?
Move
Alles rondom jouw (ver)koop overzichtelijk op één plek Met Move heb je jouw volledige (ver)koopdossier online bij elkaar.