Lindenlaan 8
Waalre
€ 875.000 k.k.
Omschrijving
Bel ons voor een bezichtiging en ervaar zelf het niveau van afwerking en ruimte dat je hier krijgt.
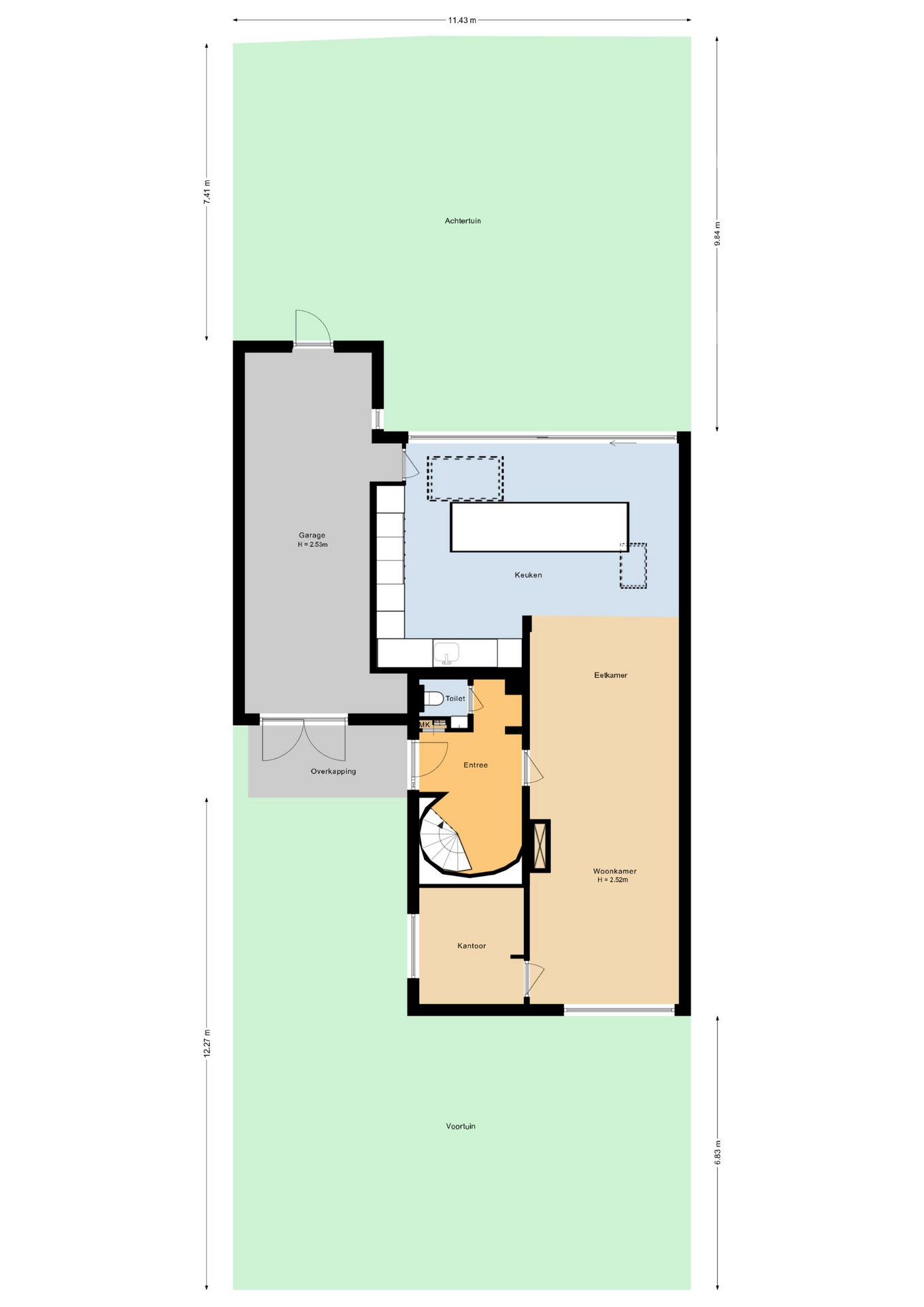
Dit half vrijstaande, exclusief uitgebouwde herenhuis is van 2020 t/m 2024 volledig en hoogwaardig gemoderniseerd en biedt circa 181 m² woonoppervlak, een grote multifunctionele garage, een royaal dakterras en een balkon. Met zes slaapkamers, een kantoor op de begane grond voorzien van meubelmaatwerk en een leefkeuken die je zelden tegenkomt, is dit een huis dat klopt tot in detail. Hier woon je ruim, stijlvol en toekomstgericht.
Binnen voel je direct de rust en het vakmanschap. De eigentijdse parketvloer vormt een warme basis door de hele woning. De woonkamer met strakke gashaard met maatwerk notenhout tv-meubel/haardwand ademt comfort en minimalistische luxe. Aan de achterzijde is de woning uitgebouwd tot een indrukwekkende leefkeuken van Van Diessen, met groot kookeiland en voorzien van alle denkbare apparatuur: inductiekookplaat, Quooker, heteluchtoven, stoomoven, wijnklimaatkast, vaatwasser en een grote koelkast. Twee royale lichtstraten en een brede aluminium schuifpui zorgen voor een zee aan daglicht en een naadloze overgang naar buiten. De woning beschikt over een professioneel uitgewerkt lichtplan, zorgvuldig afgestemd op de indeling en sfeer van de ruimtes. Op de begane grond bevindt zich daarnaast een volwaardig kantoor.
De gehele begane grond, inclusief de garage, hal en het kantoor, is voorzien van comfortabele vloerverwarming. Op deze verdieping is veelvuldig gebruikgemaakt van luxe meubelmaatwerk in het kantoor, de garderobe, het toilet en het tv-meubel (vervaardigd onder anderen uit notenhout). De drie extra hoge deuren met een luxe uitstraling, waarvan twee aluminium binnendeuren met magneetsluiting en één houten toiletdeur, versterken de exclusieve uitstraling. Voor uw veiligheid en gemak is er een camera-beveiligingssysteem aanwezig, bedienbaar met de app en via het beeldscherm in de hal. De benedenverlichting is aangelegd middels een lichtplan en is tevens via de app te bedienen, evenals de buitenverlichting bij de voordeur.
De eerste verdieping telt drie slaapkamers, één balkon aan de voorzijde en één royaal dakterras aan de achterzijde. De luxe badkamer is uitgerust met vloerverwarming, een meubelmaatwerk badmeubel van het topmerk Hi Macs (vervaardigd door designer TIZ Design) en high-end kranen van het merk Hotbath.
De tweede verdieping biedt nog eens drie slaapkamers en een praktische waskamer/berging.
De garage is ruim, voorzien van vloerverwarming en daardoor multifunctioneel te gebruiken; van hobbyruimte tot praktijk of gym.
De achtertuin is grotendeels aangelegd volgens een tuinontwerp met hoogwaardige materialen zoals Afrikaans hardhout (Padoek) voor de schutting en de vlonder. Tevens is er voor zowel de voor- als achtertuin een tuinontwerp, beplantingsplan en lichtplan aanwezig. Een impressie is bijgevoegd. Het volledige plan wordt bij aankoop door verkopers overgedragen, zodat u dit direct kunt realiseren.
Aan de voorzijde beschik je over een ruime oprit voor meerdere auto’s en ook openbaar parkeren in de straat is geen enkel probleem. Je woont hier in een gewilde woonwijk op loopafstand van Waalre-Dorp, met winkels, scholen en de Klimbim speeltuin dichtbij. De omgeving is groen en bosrijk, waardoor je zo de natuur in wandelt. Tegelijkertijd bereik je Eindhoven en uitvalswegen snel en eenvoudig. Hier combineer je ruimte, comfort en een topligging.
Bijzonderheden:
– Half vrijstaand, exclusief uitgebouwd herenhuis
– Vanaf 2020 tot 2024 volledig en hoogwaardig gemoderniseerd
– Volledige vloerverwarming op de gehele benedenverdieping (inclusief garage, hal en kantoor) en in de badkamer op de eerste
verdieping.
– Camera-beveiligingssysteem en compleet lichtplan (beide app-gestuurd).
– Luxe Van Diessen leefkeuken met twee lichtstraten en een brede aluminium pui
– Hoogwaardig keukenapparatuur zoals Inductiekookplaat, Quooker, heteluchtoven, stoomoven, wijnklimaatkast, vaatwasser en grote
koelkast
– Ruime oprit voor meerdere auto’s
– Kantoor op de begane grond
– Gashaard met maatwerk wandmeubel van notenhout
– Moderne volledig ingerichte zeer luxe badkamer (2020)
– Een ruim balkon voorzijde en een dakterras aan de tuinzijde
– Achtertuin grotendeels aangelegd, compleet tuinontwerp reeds ontwikkeld
– Gewilde ligging nabij Waalre-Dorp en bosrijke omgeving
Wil je wonen op niveau, met ruimte voor het hele gezin en een afwerking die je zelden tegenkomt? Neem contact met ons op en plan je bezichtiging aan de Lindenlaan 8 in Waalre.
Kenmerken
Interesse in deze woning?
Move
Alles rondom jouw (ver)koop overzichtelijk op één plek Met Move heb je jouw volledige (ver)koopdossier online bij elkaar.